INFO

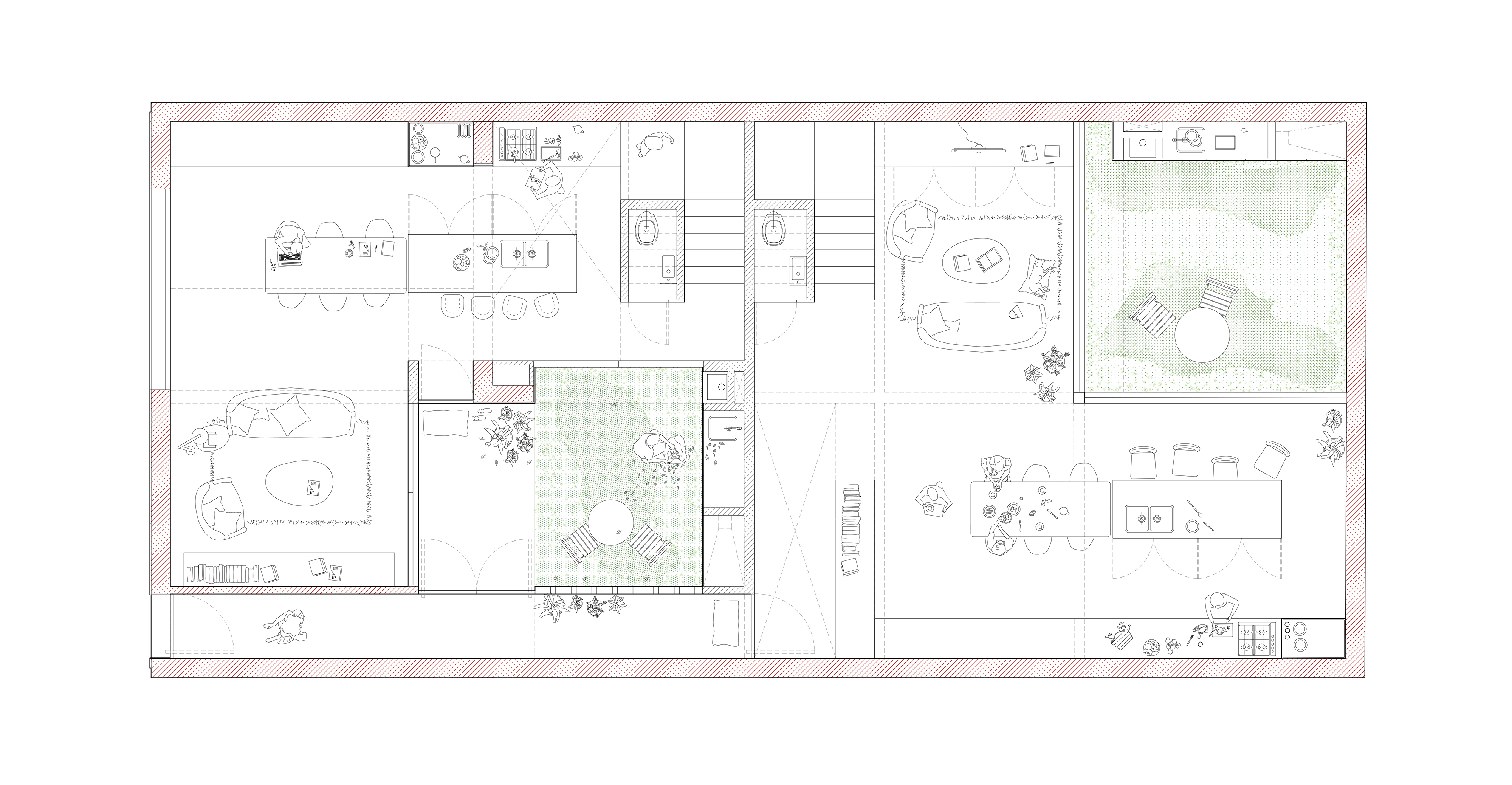
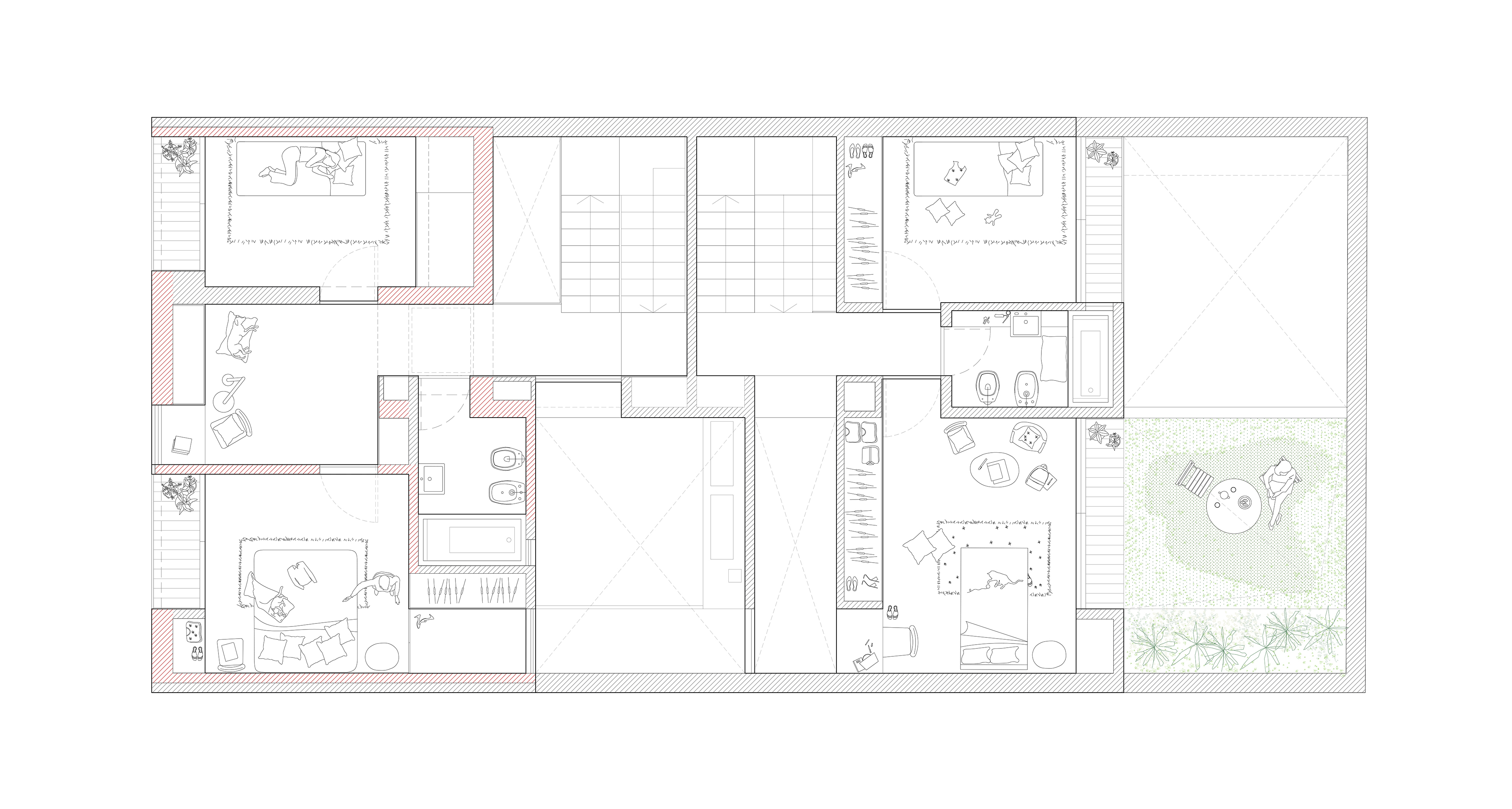
Dos casas en Saavedra.

Autores Mariano Alonso, Ludmila Crippa.

Equipo Arq. Leonardo Liñan, Patricio Tamborenea, Chiara Biolcati Rinaldi .

Programa Vivienda multifamiliar.

Superficie 300 m2

Ubicación Ciudad de Buenos Aires. (2023)